Plans
Description
Barcelona's Casa Degli Italiani gets a second life as Expanish language school, where we balance Renaissance bones with contemporary learning needs. The 18th-century building keeps its wooden beams, vaulted ceilings, and decorative details while gaining "Tapas" common areas for student socializing and "Siesta Spaces" for rest breaks. Every original window, door, and molding gets restored rather than replaced, with custom furniture designed to complement rather than compete with historical elements. The material palette honors the building's eclectic heritage through rich finishes and careful color choices—burgundy, blue, and green add contemporary warmth without overwhelming the classical framework. Greenery throughout brings freshness to the learning environment. The project demonstrates how adaptive reuse can preserve architectural memory while serving modern educational functions. This isn't about erasing history but integrating it into present-day programming through respectful intervention.
Project Details
| Completed | Phase |
|---|---|
| Casa Degli Italiani, Barcelona | Location |
| 900 sqm | Surface area |
| Alberto Eltini, Marina Martín, Daniela Guzmán, Natalia G. Fenollar, Carmen López, Antonio Ibáñez | Team |
| Ilumisa, Studio GdB, Deco & You, Mariscal, Ixia | Collaborators |
| Miguel Fernández-Galiano | Photography |
Press
Plans
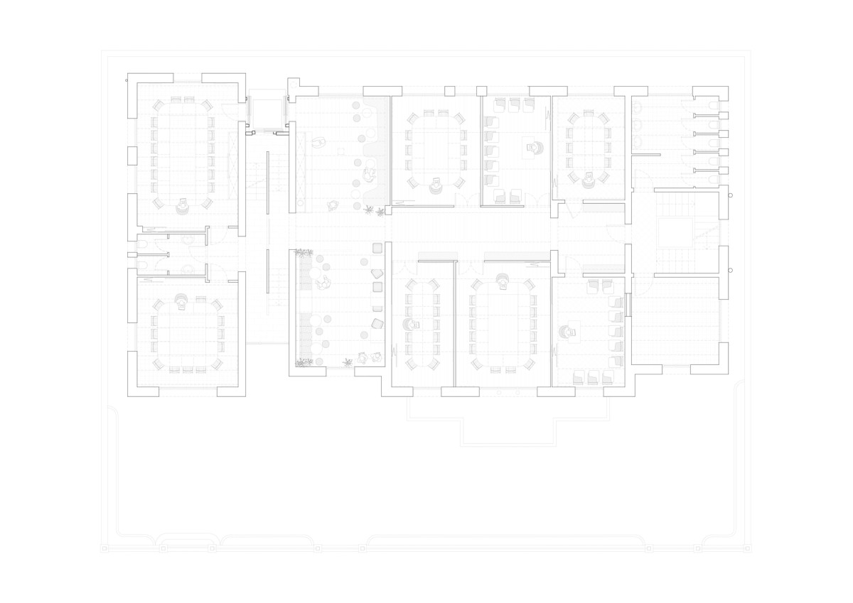
Floor plan of Level 1
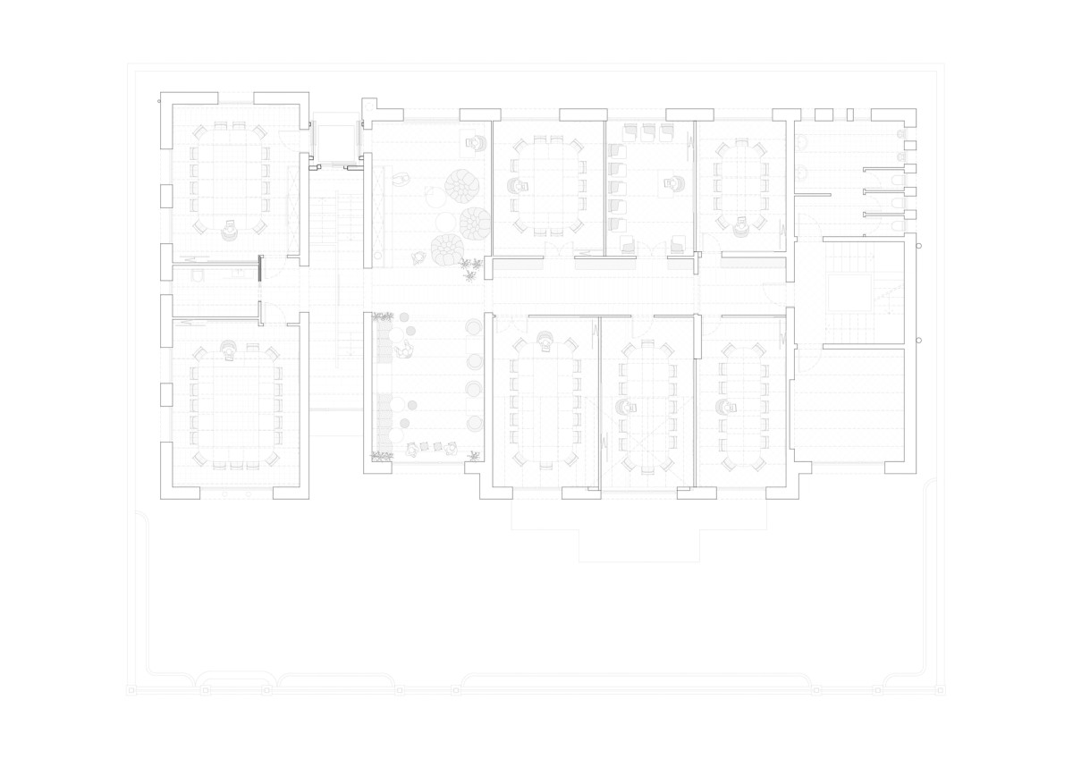
Floor Plan of Level 2
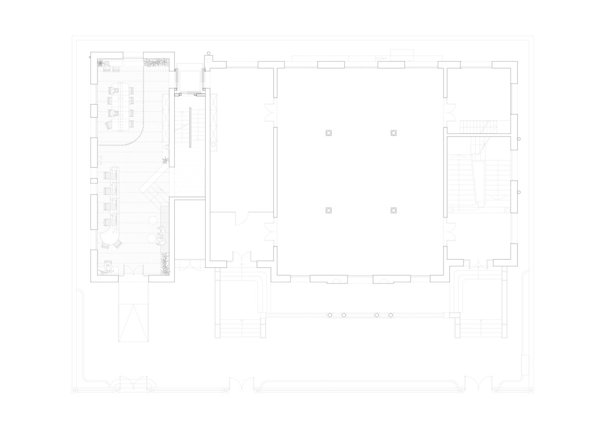
Floor plan of Level 3