Plans
Description
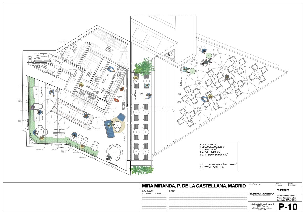
Conceived as a deliberate pause within Madrid’s fast-paced AZCA district, Mira Miranda translates the biological concept of ‘crown shyness’ into a functional spatial strategy. Developed alongside Ansón + Bonet and Estudio Brillante, the project interprets this natural canopy behavior through a system of zenithal skylights and circular oculi. This permeable architectural membrane organizes the restaurant's floor plan, using light and negative space to establish visual rhythm and intuitively guide movement.
Rejecting neutral minimalism, El Departamento relies on heavy textures to ground the space in a human scale. A rough, sprayed-green ceiling adds organic depth, forming a stark counterpoint to the precision of stainless-steel service stations and the industrial translucency of glass-block walls. Softened by warm timber, stone, and striped upholstery in deep reds and greens, the interior results in a highly tactile dining environment that physically embodies the restaurant's Mediterranean culinary concept and relaxed visual identity.
Project Details
| El Departamento | Architecture & Interior Design |
|---|---|
| Ansón + Bonet | Gastronomic Consultancy |
| Estudio Brillante | Branding |
| Miguel Fernández Galiano | Photography |
| Triangular | Construction |
| Deco & You | Textiles |
| HER | Lighting |
| Harmony, Maora | Tiles |