Plans
Description
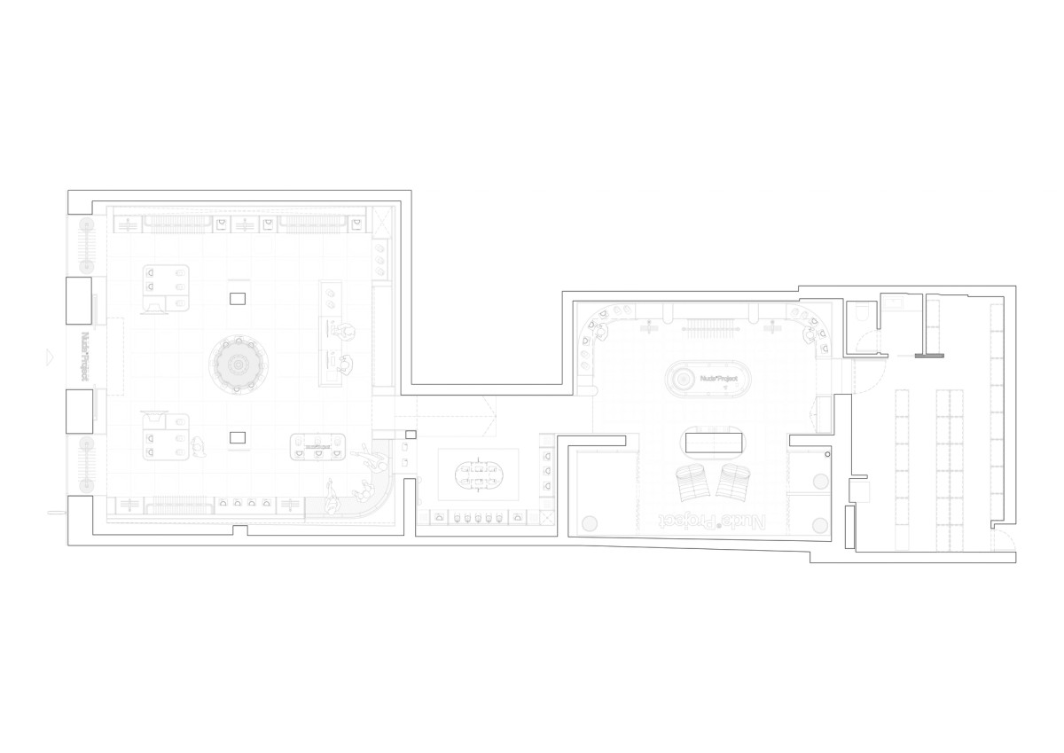
The 195 sqm flagship at 28 Fuencarral Street channels Hollywood mansion hedonism as an open house for Nude Project’s creative community. The journey unfolds through three distinct rooms connected by fluid circulation. The entrance hall features a circular counter with backlit logo, lounge seating, and a curved library showcasing brand objects. Terrazzo flooring in soft white and green tones establishes vintage character. The music room houses vinyl collections within floor-to-ceiling wood shelving, complemented by sculptural speakers and green leather chairs beneath a velvet ceiling. The game room merges the fitting area with a poker table display, where wood paneling morphs into curved shelving. Baby blue flooring and stainless steel details create dynamic reflections, while backlit coffered ceilings add cinematic depth to this urban sanctuary.
Project Details
| Completed | Phase |
|---|---|
| 28 Fuencarral Street, Madrid | Location |
| 195 sqm | Surface area |
| Alberto Eltini, Marina Martín, Daniela Guzmán, Marcos Gabarda | Team |
| Triangular, Deco & You, Ilumisa, Muebles Lluesma, Home Carpets, Aurefect | Collaborators |
| Miguel Fernández-Galiano | Photography |