Plans
Description
Inspired by Stanley Kubrick’s cinematic universe, Nude Project’s 250 sqm Amsterdam flagship store explores cultural tensions between freedom and control. The corner building houses four themed rooms across two levels, each referencing specific Kubrick films. The '2001' room features brushed steel flooring and backlit perforated panels for premium collections. 'The Shining' space evokes 1970s hotel aesthetics with Persian carpets and illuminated glass blocks. Upstairs, 'Eyes Wide Shut' presents butter-colored walls and arched niches beneath an expansive fresco painted onsite by Málaga-based artist Pedro Hoz, while 'Lolita' offers intimacy through deep red ceramics and custom wood paneling. A stone sculpture with an angel anchors the entrance, while Lucas Muñoz's sound installation accompanies the journey between levels. The design transcends retail to become a cultural platform.
Project Details
| Completed | Phase |
|---|---|
| 31 Leidsestraat, Amsterdam | Location |
| 250 sqm | Surface area |
| Alberto Eltini, Marina Martín, Daniela Guzmán, Marcos Gabarda | Team |
| Lucas Muñoz, Pedro Hoz, Triangular, Her, Deco & You, Muebles Lluesma, Habana Home, Aurafect, Demosaica | Collaborators |
| Miguel Fernández-Galiano | Photography |
Press
Plans
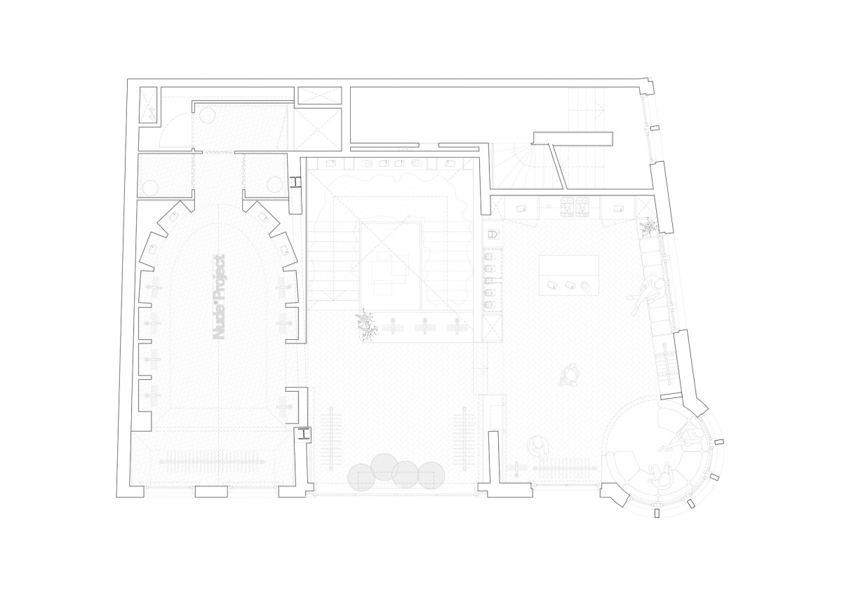
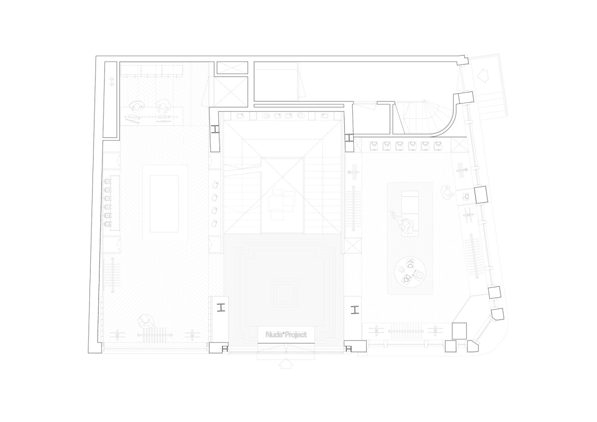
Floor plan of Level 1
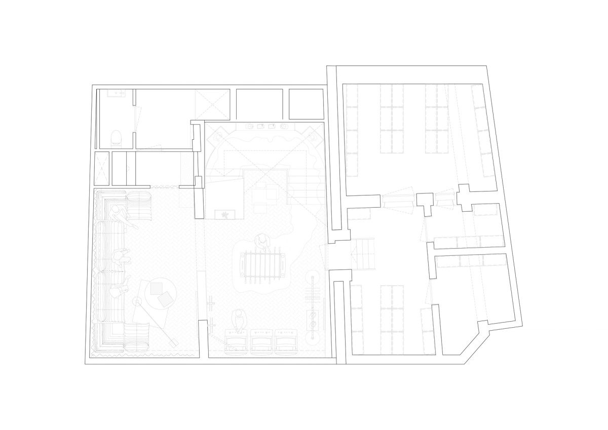
Floor plan of Level -1