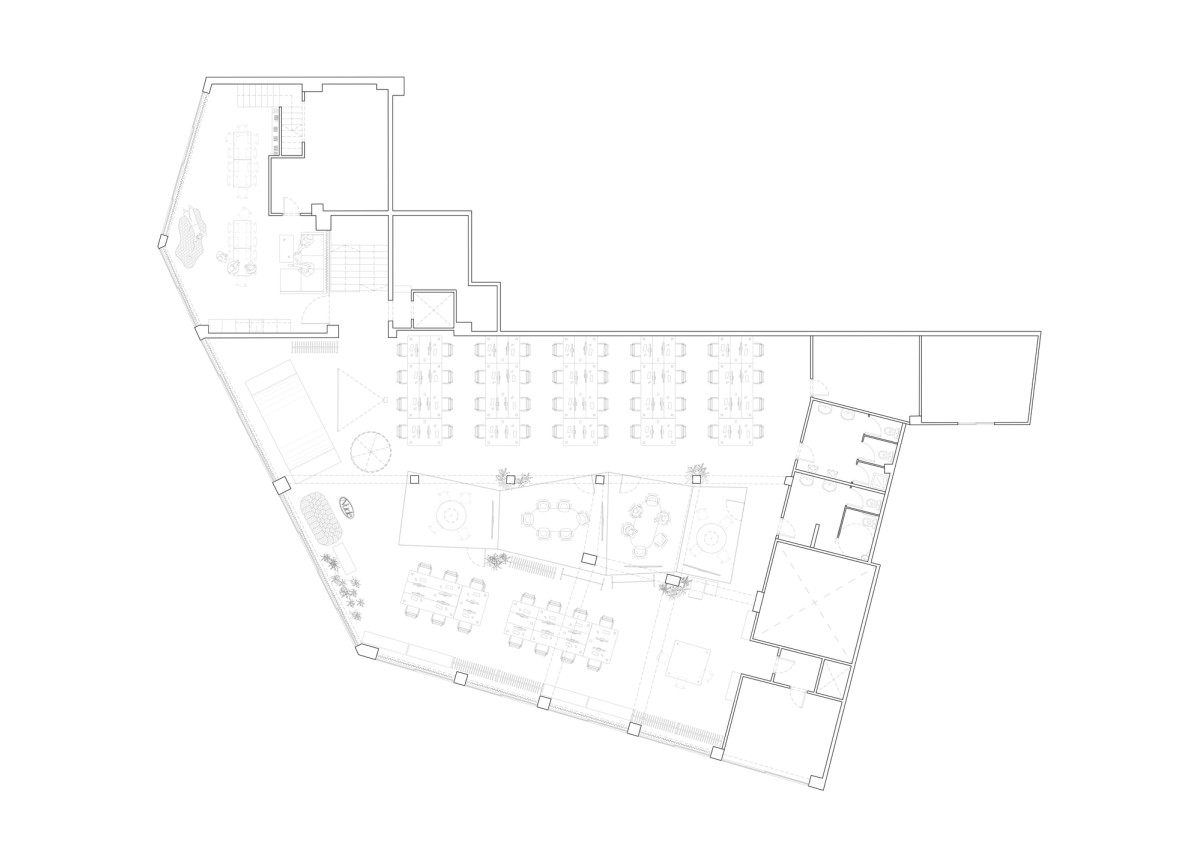
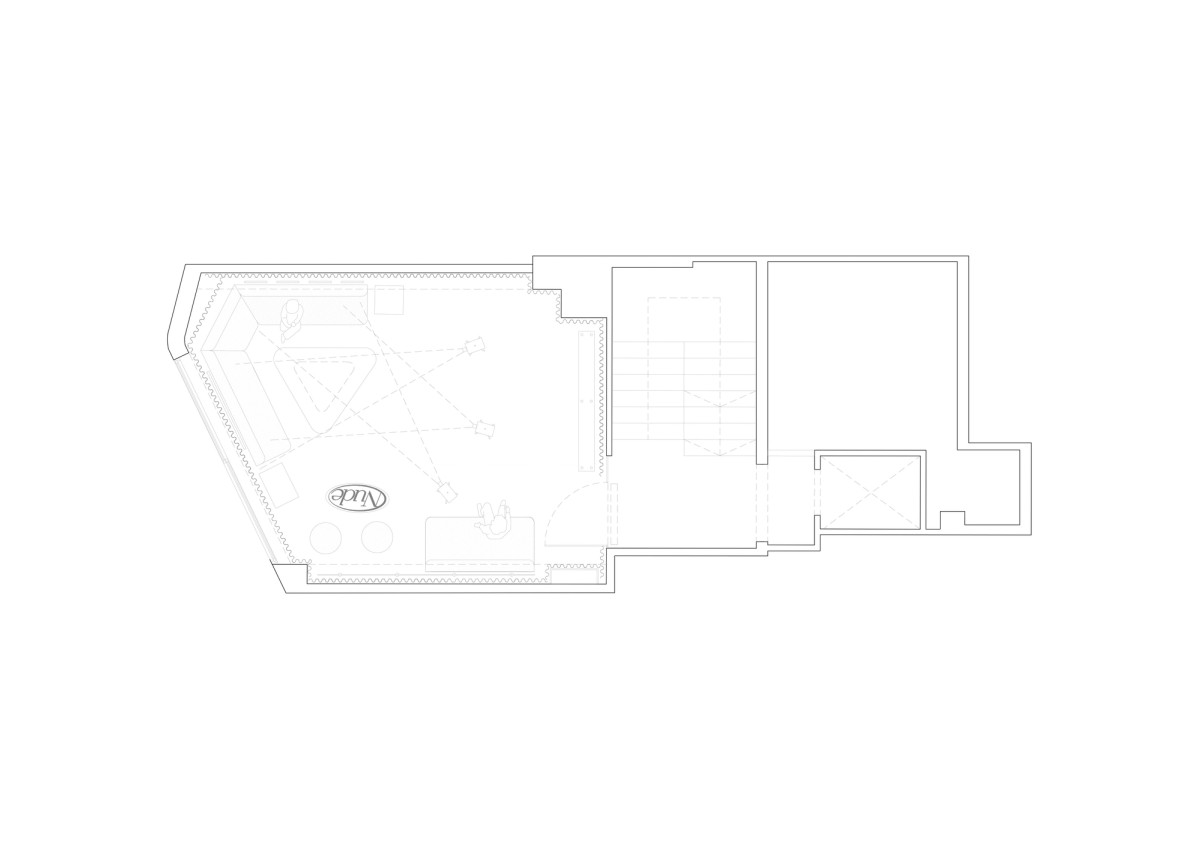
Plans
Description
In the heart of Barcelona’s Poble Nou district, we transformed a former industrial set into a four-story creative hub for Nude Project. The 750m² space includes offices, a photo studio, podcast room, and recording spaces—all designed to match the energy of Spain’s fastest-growing streetwear brand. From the beginning, the goal was clear: foster creativity and collaboration while respecting the raw structure of the original building. Biophilic touches, sound-absorbing elements, and warm textures define the interiors, anchored around a central meeting island shaped like a ham leg—an irreverent nod to the brand’s roots. Natural light, visible infrastructure, and the iconic baby blue palette bring together function, calm, and character.
Project Details
| Completed | Phase |
|---|---|
| Poble Nou, Barcelona | Location |
| 680 sqm | Surface area |
| Alberto Eltini, Marina Martín, Daniela Guzmán, Natalia G. Fenollar, Carmen López | Team |
| Ilumisa, HMY, EGE, Deco & You, Ambienta, Hosfritec, Mingobarrasate | Collaborators |
| Miguel Fernández-Galiano | Photography |
Press
Plans
Podcast Floorplan
Photo Studio Floorplan