Plans
Description
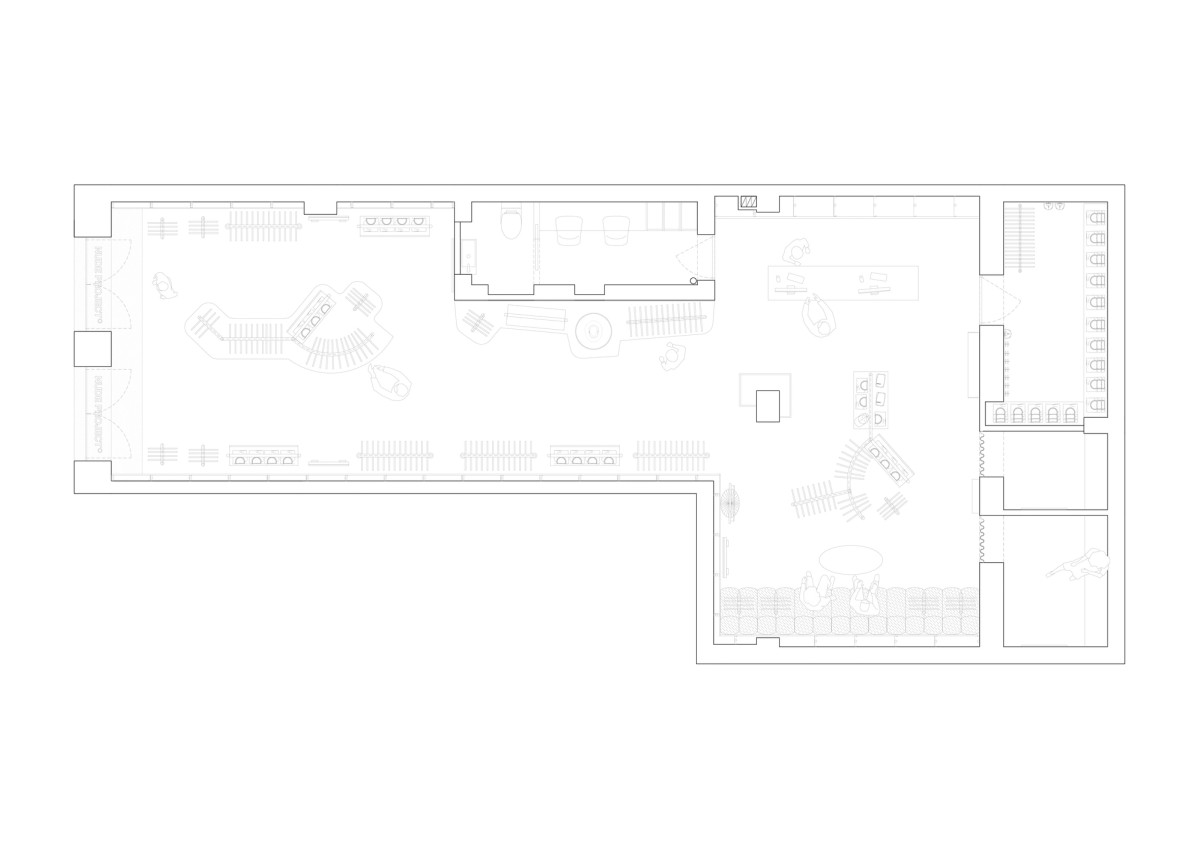
On a quiet side street near Valencia's Mercado de Colón, Nude Project opens its only local outpost in a former fish market. Rich with early 20th-century eclectic architecture—mosaic murals, wooden beams, original tiles, and a majestic whale mosaic—the location grounds the design. Inspired by a “Kentucky with Champagne” concept, we elevated the everyday with glowing methacrylate veils that softly reveal the site’s architectural scars while nodding to the brand’s ethos. Contrasts abound: sleek steel displays, vintage TVs, plush faux-fur fitting rooms, and seamless transitions between physical and digital. It’s a raw yet refined space, where urban grit meets polished design and brand authenticity thrives.
Project Details
| Completed | Phase |
|---|---|
| 1 Martínez Ferrando Street, Valencia | Location |
| 110 sqm | Surface area |
| Alberto Eltini, Marina Martín, Daniela Guzmán, Antonio Ibáñez | Team |
| HMY | Collaborators |
| Jorge Peiró | Photography |