Plans
Description
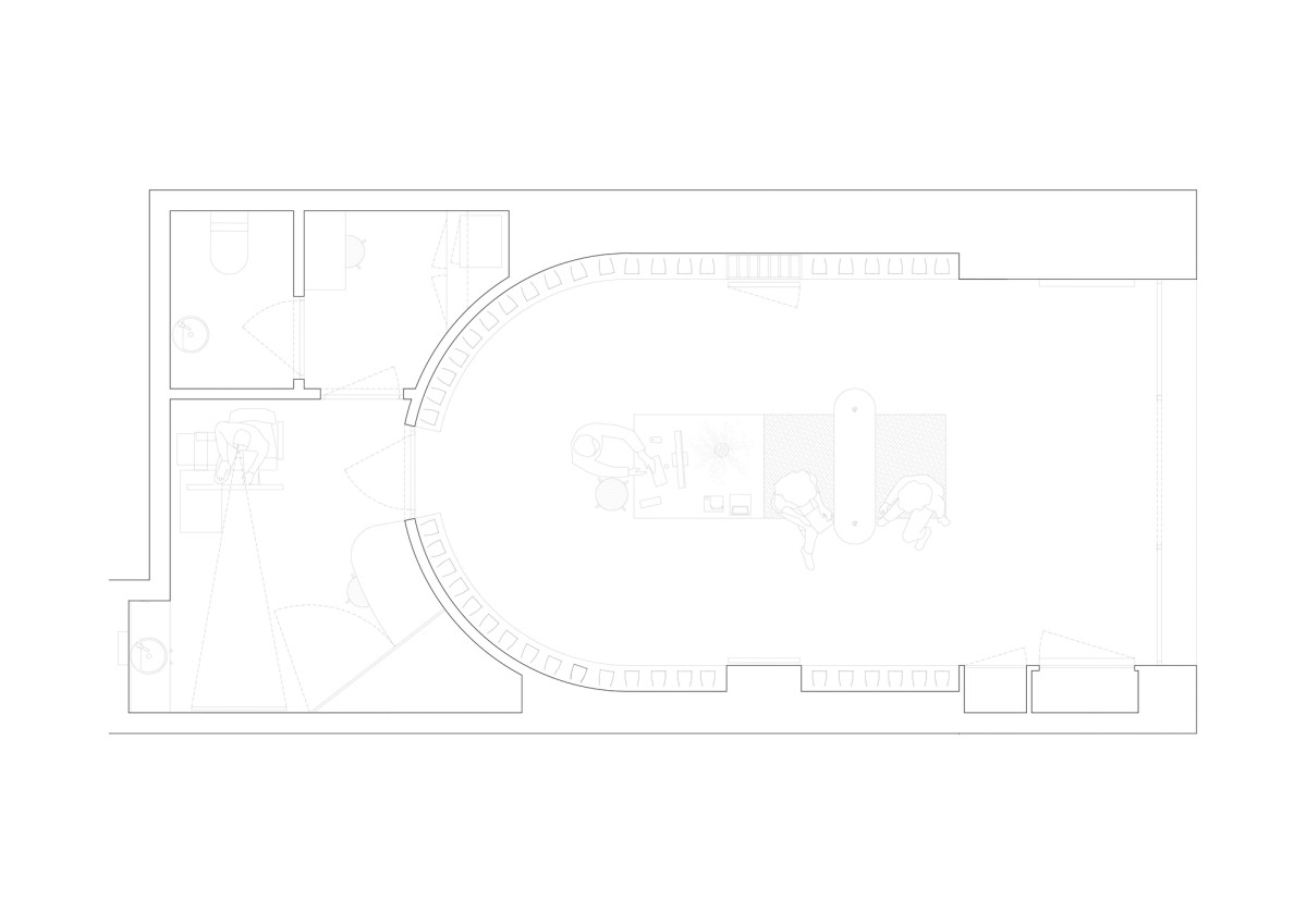
Zaragoza's Isaac Peral Street gets 40 sqm of minimalist precision in the latest PJ. Lobster optical boutique. Terracotta dominates every surface while stainless steel provides contrast and connects to the brand's high-tech identity. The layout opens into a semicircle with curved walls holding illuminated shelving at varying heights. A central axis organizes display furniture and equipment storage, while the rear houses optical measurement instruments. The geometry stays symmetrical and clean throughout. Large illuminated mirrors expand the space visually and practically for product trials. A central counter welcomes customers with careful product arrangement and modern transaction technology. A dedicated rest area includes comfortable seating and refreshments, extending the shopping experience beyond pure function. Every detail serves PJ. Lobster's mission of accessible, high-quality vision care while maintaining the texturized minimalism and the design consistency that defines the brand's growing retail network.
Project Details
| Completed | Phase |
|---|---|
| 5 Isaac Peral Street, Zaragoza | Location |
| 40 sqm | Surface area |
| Alberto Eltini, Marina Martín, Daniela Guzmán, Natalia G. Fenollar, Vitoria Da Silva | Team |
| Ilumisa, Triangular, Deco & You | Collaborators |
| Miguel Fernández-Galiano | Photography |