Plans
Description
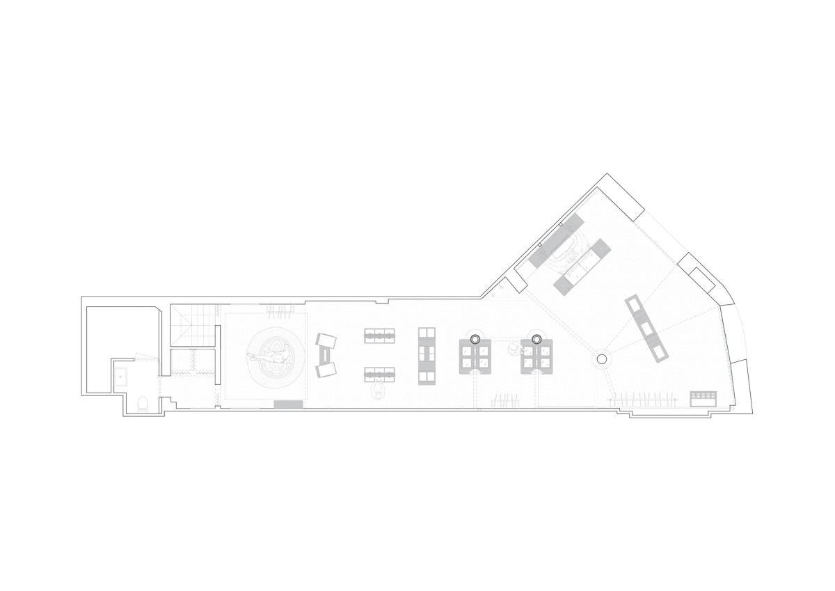
Barcelona’s Rambla Catalunya hosts TwoJeys’ 132 sqm flagship, embodying “Iconic youth imperfection.” We channeled industrial aesthetics inspired by American artisanal workshops. Dark concrete wraps floors and walls, creating an immersive envelope punctuated by backlit panels and custom furniture. Metallic star sculptures greet visitors at the entrance, while oversized wooden-framed speakers hang overhead. Jewelry displays use solid patinated wood stands and glass cases that elevate product perception. The space's centerpiece is a leather cowboy hat sofa positioned near a BMW E30 embedded in the wall—both pieces reinforce the brand's transgressive character. A staircase leads to an artistic residency area for tattoo sessions and exhibitions, making this more than retail space. The double-height corner location with dual entrances gives the store commanding street presence while serving the TwoJeys community.
Project Details
| Completed | Phase |
|---|---|
| Rambla De Catalunya, 42 Barcelona | Location |
| 132 sqm | Surface area |
| Alberto Eltini, Marina Martin, Daniela Guzmán, Natalia G Fenollar, Vitoria Da Silva | Team |
| Novodecor, Ilumisa, Lightsound, Deco&You, Siete y Media | Collaborators |
| Miguel Fernández-Galiano | Photography |
Press
Plans